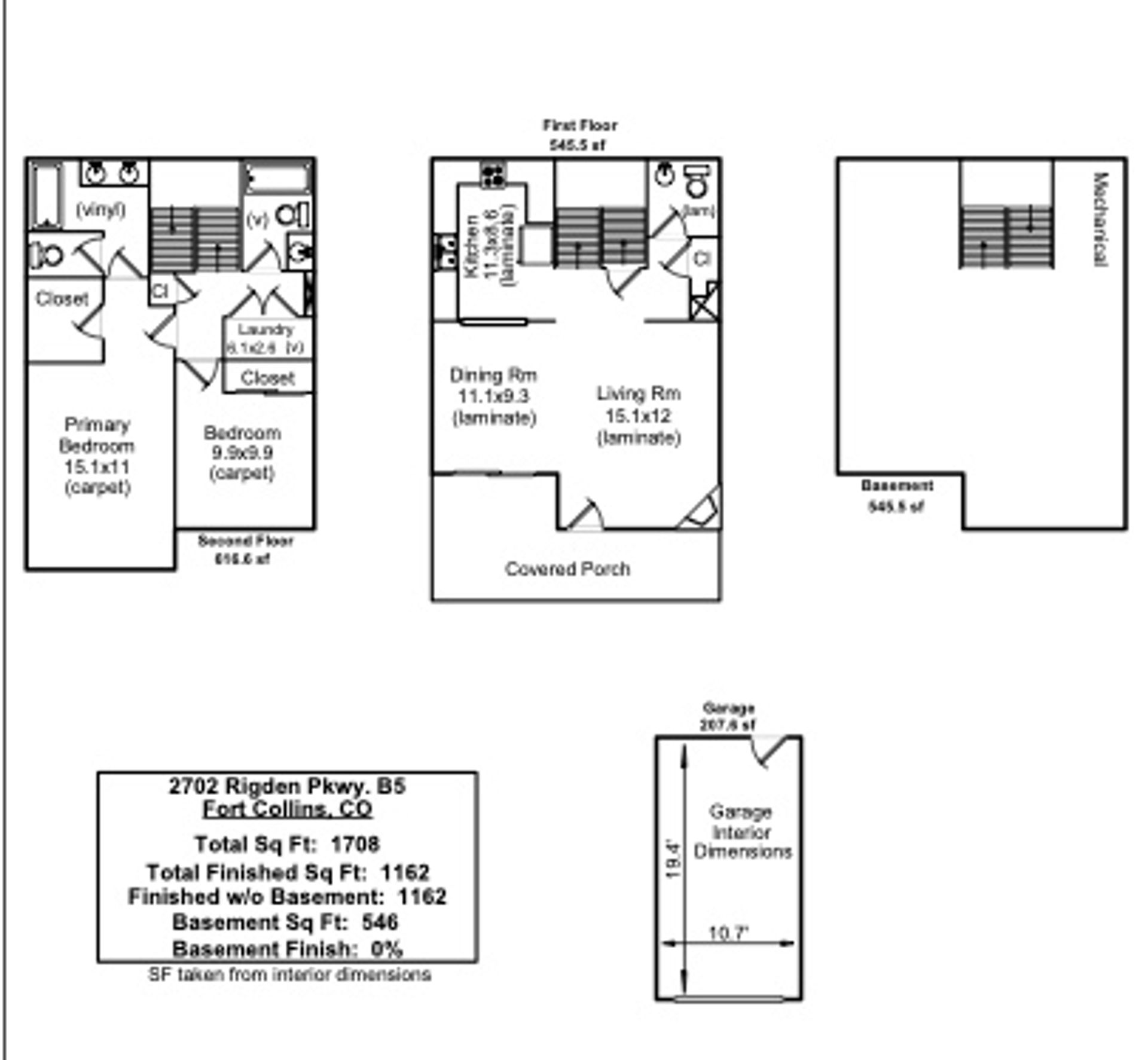
2702 Rigden Pkway - 2702 Rigden Parkway, B5, Fort Collins, CO 80525
2702 Rigden Pkway - 2702 Rigden Parkway, B5, Fort Collins, CO 80525
Townhome -2 bed 2.5 bath + bonus area
Cute corner townhome with patio and one car detached garage. Mature trees, private, quiet and lots of natural light. Cozy front porch greets you on your way to your front door. Gas fireplace, good sized kitchen and dining area. This townhome is amazing in layout and location; walk to groceries, Orange Theory, Krazy Karl's Pizza, this centrally located townhome allows for quick access to I25, Timberline Ave, Harmony Street and College Ave..but that is not all! Club house and pool only 40 feet from your doorstep. This is a must see!
Contact us:





















































